Terreno
Venda: 1 200 000,00 €





Excelente oportunidade de investimento junto à natureza e ao mar.
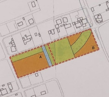
Dois terrenos contíguos com área total de 10.000 m², inseridos numa zona tranquila e com forte potencial de desenvolvimento urbanístico, a poucos minutos da deslumbrante Lagoa de Albufeira e das praias da região de Sesimbra.
Área total: 10.000 m² (dois lotes — possibilidade de venda conjunta ou separada)
Área de Implantação: 3000m2
Potencial construtivo: até 15 moradias unifamiliares
Acessos: bons acessos rodoviários e proximidade a infraestruturas essenciais
Localização privilegiada: zona calma, envolvida por natureza, próxima da lagoa e do mar
Infraestruturas: eletricidade, água e saneamento nas proximidades
Concelho: Sesimbra | Freguesia: Castelo (Lagoa de Albufeira)
Localização em área de forte crescimento e valorização imobiliária
Ideal para promotores, investidores ou para quem pretende construir uma moradia de sonho
Excelente relação entre preço, área e potencial construtivo
Ambiente natural, seguro e tranquilo — perfeito para habitação permanente ou turismo
Flexibilidade de venda: possibilidade de adquirir apenas um lote.
Não coloque limites nos seus sonhos...
Contacte -me para mais informações!
Estado: Usado
Ano de Construção: ---
Área do terreno: 10 000,00 m²
Área bruta privativa: 10 000,00 m²