Terreno Urbano
Venda: 108 000,00 €





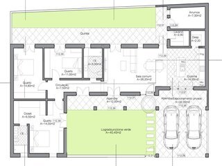
Terrain exclusif avec permis de construire accordé pour une maison individuelle de plain-pied (T3).
D'une superficie totale de 286 m², ce terrain comprend un projet élégant pour une maison de plain-pied d'une surface habitable brute de 170 m², conçue pour offrir confort, fonctionnalité et un style de vie contemporain (surfaces en annexe, sous réserve de modifications).
Emplacement privilégié et central, avec une excellente accessibilité, à seulement 15 km des plages et à 1h30 de l'aéroport de Faro.
Espaces spacieux et lumineux, au design contemporain et élégant. Un projet exclusif, prêt à construire.
État: En projet
Année de construction: ---
Surface du terrain: 286,00 m²
Superficie brute privée: 170,00 m²