Terreno Urbano
Venda: 220 000,00 €




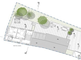
Oportunidade de investimento em Vale da Boa Hora - Loulé, Terreno urbano com 470 m², inserido em zona tranquila, de enquadramento natural e boa exposição solar, com projeto aprovado para construção de moradia familiar de dois pisos, pronto a iniciar obra, evitando demoras e incertezas de licenciamento.
Projeto da Moradia: 3 quartos, sendo 1 em suíte com vestiário, 3 wc, com uma sala de estar ampla e luminosa, lavandaria, arrumos e carpot 2 automóveis
A moradia foi concebida para oferecer conforto, funcionalidade e excelente aproveitamento de áreas, privilegiando a ligação ao espaço exterior, com potencial para jardim, zona de lazer e eventual piscina.
Localização estratégica, a poucos minutos da autoestrada, do centro de Loulé e do aeroporto Internacional de Faro, com bons acessos, privacidade e ambiente campestre, ideal para residência permanente, segunda habitação ou investimento numa das zonas mais valorizadas do Algarve.
Uma propriedade que reúne localização, dimensão e comodidade.
Área do terreno: 470 m² -VU: 468,08 €/m²
Descubra um projeto onde conforto, espaço e qualidade de vida se encontram de forma harmoniosa.
+351 936 662 926 (chamada para rede móvel nacional) - p.costa@predimed.pt
Estado: Em Projecto
Ano de Construção: ---
Área do terreno: 470,00 m²
Área bruta privativa: --- m²