Lote Moradia
Venda: 125 000,00 €





Localizado em Sarrilhos Grandes, no concelho do Montijo, este terreno apresenta comunicação prévia do projeto de arquitetura aprovada, o que permite avançar imediatamente para a fase de projeto das especialidades e posterior construção. A área destina-se à edificação de uma moradia em banda, com um programa arquitectónico bem definido e potencial para quem pretende materializar a sua habitação própria.
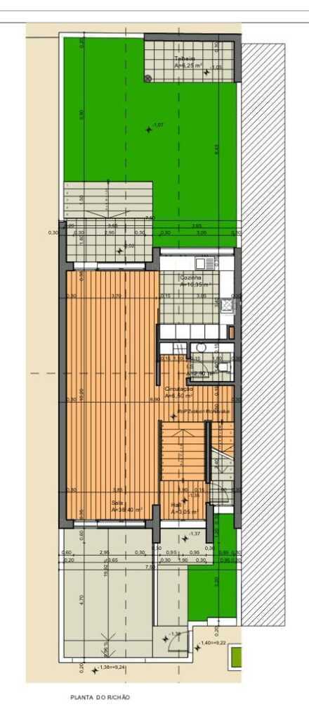
O projeto prevê uma moradia de dois pisos habitáveis, complementados por um sótão e uma cave que inclui garagem. A distribuição proposta oferece versatilidade, permitindo diferentes configurações de espaços conforme as necessidades do proprietário. O exterior conta com área para jardim e telheiro, elementos que ampliam as possibilidades de usufruto do imóvel.
A localização privilegiada em Sarrilhos Grandes garante proximidade a serviços essenciais, comércio local e vias de acesso rápidas para o Montijo e Lisboa, através da Ponte Vasco da Gama. O terreno situa-se numa zona em desenvolvimento, com excelentes perspetivas de valorização.
Características Principais:
- Terreno com comunicação prévia aprovada
- Projeto de moradia em banda
- 2 pisos habitáveis + sótão + cave
- Cave com garagem
- Área exterior com jardim e telheiro
- Zona tranquila com boa acessibilidade
- Proximidade a serviços e transportes
Este terreno representa uma oportunidade única para quem procura construir a sua habitação de raiz numa zona em crescimento, com todas as autorizações prévias já regularizadas. A existência de projeto aprovado agiliza todo o processo, permitindo um início rápido da obra.
A moradia projetada combina funcionalidade e qualidade de vida, com espaços bem distribuídos e áreas exteriores privativas. A cave garante o estacionamento protegido, enquanto o jardim oferece possibilidades de lazer ao ar livre.
Sarrilhos Grandes destaca-se pela sua localização estratégica no Montijo, com fácil acesso a Lisboa e ao distrito de Setúbal. A zona apresenta um crescimento sustentado, tornando este investimento interessante tanto para habitação própria como para fins patrimoniais.
Condições de Construção:
- Área bruta de construção conforme projeto
- Cumpre todos os requisitos municipais
- Possibilidade de personalização nas especialidades
- Infraestruturas básicas próximas
Este terreno oferece as condições ideais para quem pretende construir uma moradia moderna e funcional, num local bem servido de equipamentos e com excelentes acessos. A existência de projeto aprovado representa uma vantagem significativa, eliminando entraves burocráticos iniciais e permitindo um processo de construção mais célere.
A tipologia em banda assegura privacidade e eficiência energética, enquanto a distribuição proposta maximiza o aproveitamento do espaço. A cave amplia a área útil da habitação, proporcionando versatilidade de utilização.
Com uma localização que equilibra tranquilidade e conveniência, este terreno em Sarrilhos Grandes posiciona-se como uma escolha acertada para investimento habitacional na região do Montijo. A combinação entre projeto aprovado, dimensões generosas e potencial de valorização fazem desta oportunidade um caso a considerar no mercado imobiliário atual.
Inglês:
Land for Construction in Sarrilhos Grandes - Montijo
Located in Sarrilhos Grandes, in the municipality of Montijo, this plot of land has approved preliminary architectural project communication, allowing immediate progression to specialty project development and subsequent construction. The area is designated for building a row house, with a well-defined architectural program and potential for those looking to materialize their dream home.
The project envisions a two-story habitable house, complemented by an attic and a basement that includes a garage. The proposed layout offers versatility, allowing different space configurations according to the owner's needs. The exterior features an area for a garden and a covered patio, elements that enhance the property's usability.
The privileged location in Sarrilhos Grandes ensures proximity to essential services, local commerce, and quick access routes to Montijo and Lisbon via the Vasco da Gama Bridge. The plot is situated in a developing area with excellent appreciation prospects.
Key Features:
- Plot with approved preliminary communication
- Row house project
- 2 habitable floors + attic + basement
- Basement with garage
- Exterior area with garden and covered patio
- Quiet area with good accessibility
- Close to services and transport
This plot represents a unique opportunity for those looking to build their home from scratch in a growing area, with all preliminary permits already regularized. The existence of an approved project streamlines the entire process, allowing for a quick start to construction.
The planned house combines functionality and quality of life, with well-distributed spaces and private outdoor areas. The basement ensures protected parking, while the garden offers outdoor leisure possibilities.
Sarrilhos Grandes stands out for its strategic location in Montijo, with easy access to Lisbon and the Setúbal district. The area shows sustained growth, making this investment interesting both for personal residence and patrimonial purposes.
Construction Conditions:
- Gross construction area according to project
- Complies with all municipal requirements
- Possibility of customization in specialties
- Basic infrastructure nearby
This plot offers ideal conditions for those looking to build a modern and functional house in a well-equipped location with excellent access. The approved project represents a significant advantage, eliminating initial bureaucratic hurdles and enabling a faster construction process.
The row house typology ensures privacy and energy efficiency, while the proposed layout maximizes space utilization. The basement expands the home's usable area, providing versatility of use.
With a location that balances tranquility and convenience, this plot in Sarrilhos Grandes positions itself as a sound choice for residential investment in the Montijo region. The combination of an approved project, generous dimensions, and appreciation potential makes this opportunity worth considering in the current real estate market.
The architectural design meets contemporary living standards while respecting local building traditions. Future residents will benefit from both the rural charm of Sarrilhos Grandes and urban conveniences just minutes away.
Investors will find this property particularly attractive due to Montijo's continuous development and improving infrastructure, including the upcoming Metro expansion plans that will enhance connectivity to Lisbon.
The approved project includes all necessary technical specifications while allowing flexibility for final adjustments during the specialty project phase. Construction can begin immediately after obtaining the necessary licenses.
This is more than just a building plot - it's a chance to create a customized home in one of Montijo's most promising areas, with all the hard work of initial approvals already completed. The property's strategic position between Lisbon and Setúbal offers the perfect balance between peaceful living and urban accessibility.
With its approved documentation and development-ready status, this plot eliminates much of the uncertainty typically associated with construction projects, making it an exceptional opportunity in today's market.
Estado: Em Projecto
Ano de Construção: ---
Área do terreno: 175,45 m²
Área bruta privativa: --- m²