Lote
Venda: 2 190 000,00 €





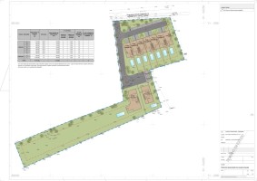
Excellent buildable plot of 7,080 m2 with sea views in Praia da Luz, offering several construction possibilities by submitting a request for prior information (PIP) approved for the construction of a housing development with 9 duplex apartments, all T2/T3, distributed over 2 floors. In this proposal there will be 7 semi-detached houses and 7 detached houses with a maximum construction area of 130m2 to 300m2 and the lots will have areas from 347m2 to 3,224m2 all with a private pool.
The gross construction area can extend up to 2,832 m2.
Close to the magnificent Praia da Luz, to all amenities in the village of Luz and also to the city of Lagos, this seafront plot has an excellent location.
Ordering:
Maximum land occupation index IO (implantation index) - 0.20x7.080m2 = 1,416m2
Maximum land use index IU (construction index) - 0.20 x 7,080m2 = 1,416m2
Maximum soil sealing index - 0.40 x 7,080m2 = 2,832m2
Number of floors on the surface - 2
Number of underground floors - 1
Maximum facade height – 7.5m
Distances:
- 1.9 km from the EN125
- 1.6 km from Praia Luz
- 6 km from the City of Lagos
- 94 km from Faro Airport
Excellent investment business for construction.
State: New
Construction year: ---
Land area: 7 080,00 m²
Capacity area: 1 416,00 m²