Terreno
Venda: 110 000,00 €



Terreno urbano com 345m2, em zona de transformação urbana, com viabilidade construtiva de uma moradia de 3 frentes + piscina.
Potencial construtivo:
121m2 de implantação;
242m2 de área bruta;
3 pisos: Cave + 2 pisos + Aproveitamento de sótão/solário/escritório;
Orientação solar: (NO/SE/NE)
Ótima localização:
- 1 min Pingo Doce Valadares;
- 1 min entrada auto estrada A44;
- 1 min entrada auto estrada A29;
- 3 min Continente Valadares;
- 5 min praia Valadares
Envolvente:
Zona tranquila, essencialmente de moradias.
Bons acessos a serviços, comércio e transportes públicos nas imediações
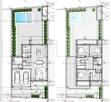
Fotografias: - Imagem 3D apenas ilustrativa;
- Plantas 2D: reais em planeamento com arquiteto, apenas para 2 pisos por opção pessoal.
Agende já a sua visita!
Ruth Santos
Predimed Casanova
Estado: Em Projecto
Ano de Construção: ---
Área do terreno: 345,00 m²
Área bruta privativa: 262,00 m²