Lote Moradia
Venda: 600 000,00 €





Terrains situés à Porto de Mós, une zone extrêmement « sélect» de Lagos.
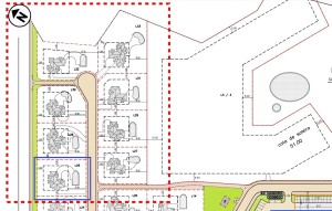
Au total, il y a 8 terrains à bâtir, dans une zone où les terrains sont rares ; En fait, ces terrains sont les derniers à arriver sur le marché. Sur les photographies, vous pouvez voir un document qui présente la qualité de la localisation par rapport aux points chauds de Lagos, que ce soit à pied ou en voiture.
Il y a des plages, des circuits et des itinéraires pour tous les goûts. L'itinéraire le plus long et le plus spectaculaire est celui qui emmène le promeneur à pied, en longeant la falaise, de la plage de Porto de Mós à la plage de Praia da Luz.
Cependant, il existe un large éventail de destinations, des plages de Dona Ana et Camilo, au phare de Ponta da Piedade, en passant par la plage de Porto de Mós, sans oublier les bons restaurants de la zone et le centre historique de Lagos, situé à seulement 15 minutes à pied.
Le quartier est véritablement « sélect » et garantit une belle vie à toute la famille.
Les 8 parcelles ont une superficie allant de 1 193 m2 à 1 764 m2 pour la plus grande et la plus chère.
Les maisons autorisées par la Mairie de Lagos ont une superficie de 200m2, avec la construction de 2 étages de 200m2, de type T3, avec cave.
Lagos est classée et reconnue comme étant la plus belle ville du Barlavento, zone Est de l'Algarve.
Si vous pensez que votre famille mérite de vivre dans une région exceptionnellement belle en toute sécurité, veuillez me contacter pour organiser votre visite sur place ou pour plus d'informations.
État: Nouveau
Année de construction: ---
Surface du terrain: 1 193,00 m²
Superficie brute privée: 400,00 m²