Terreno Urbano
Venda: 700 000,00 €





Lotes de terreno exclusivos en Porto de Mós, Lagos
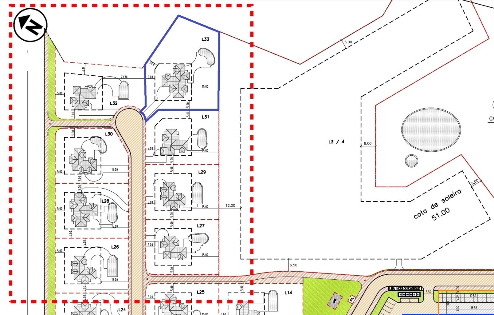
Le presento una oportunidad única: ocho lotes de terreno ubicados en Porto de Mós, una de las zonas más exclusivas y privilegiadas de Lagos. En una zona donde los terrenos son escasos, estos lotes representan las últimas opciones disponibles en el mercado, ofreciendo una oportunidad rara de adquirir propiedad en una ubicación envidiable.
Las imágenes que acompañan este anuncio muestran un documento que detalla la proximidad de las principales atracciones de Lagos, tanto a pie como en coche. La zona ofrece una variedad de opciones para todos los gustos: desde playas de rara belleza y senderos junto al mar hasta restaurantes exclusivos y el encantador centro histórico, que se encuentra a solo 15 minutos a pie. El recorrido más impresionante le lleva de la Praia de Porto de Mós a la Praia da Luz, a lo largo de los acantilados, ofreciendo vistas impresionantes.
Este lugar no es solo un destino excepcional para vivir, sino un refugio ideal para aquellos que buscan una vida tranquila, sofisticada y segura, con fácil acceso a todas las comodidades y entretenimiento que Lagos tiene para ofrecer.
Cada uno de los ocho terrenos tiene un área que varía entre 1.193 m² y 1.764 m². El Ayuntamiento de Lagos ha aprobado proyectos para la construcción de villas de tipología T3, con una huella de 200 m², distribuidos en dos plantas y un sótano, asegurando espacio y confort para toda la familia.
Lagos, reconocida como una de las ciudades más encantadoras del Barlavento Algarvio, sigue atrayendo a quienes buscan calidad de vida en una de las regiones más codiciadas y prestigiosas del Algarve.
Si cree que su familia merece vivir en una de las zonas más bellas y seguras de la región, no dude en ponerse en contacto conmigo para agendar una visita o obtener más información sobre esta exclusiva oportunidad.
En caso de ser necesario, ofrecemos un servicio de corretaje para financiar su compra.
Estado:
Año de construcción: ---
infraestructuras: 1 764,00 m²
Capacidad: 400,00 m²