Terreno Urbano
Venda: 340 000,00 €





Excelente oportunidade de negócio.
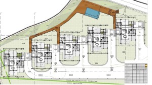
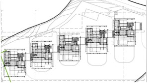
Terreno com 6480 m2, projecto aprovado para construção de 5 moradias tipo T3, todos de uso habitacional e com 2 pisos. Piso 0 com hall de entrada, acesso ao piso 1, casa de banho, quarto, sala comum, cozinha, terraços e piscina. Piso 1, hall, 3 suites todas com terraço próprio.
No sentido de adaptação à morfologia do terreno as habitações estão orientadas de nascente para poente, a piscina comum a nascente e espaços verdes privilegiam sempre da exposição solar, área bruta de construção 1078,25 m2.
Terreno urbano está, localizado na Aldeia das Almeijoafras na Freguesia de Paderne, esta localiza-se no Barrocal Algarvio, é uma pequena Aldeia com 53km2 de área e com aproximadamente 5000 habitantes.
Estado: Em Projecto
Ano de Construção: ---
Área do terreno: 6 480,00 m²
Área bruta privativa: 1 078,00 m²